prodej komerční nemovitosti Králíky

Stav nemovitosti: Na prodej
Adresa: ulice 5. května, Králíky
Celková plocha: 519 m²
Zastavěná plocha: 243 m²
Cena: na vyžádání v kanceláři
Komerční budova se čtyřmi podlažími, ideální pro podnikání a zároveň bydlení.
Tato nemovitost se nachází přímo v centru města na lukrativním místě, v krásné památkové zóně a představuje skvělou příležitost pro investory, kteří chtějí podnikat na takto zajímavé adrese a zároveň využít potenciál bytových jednotek pro pasivní příjem.
Zde jsou klíčové vlastnosti této nemovitosti:

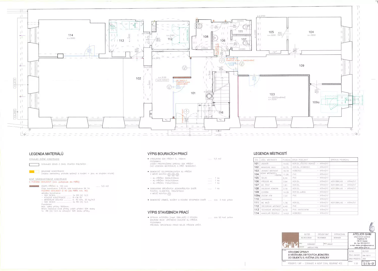
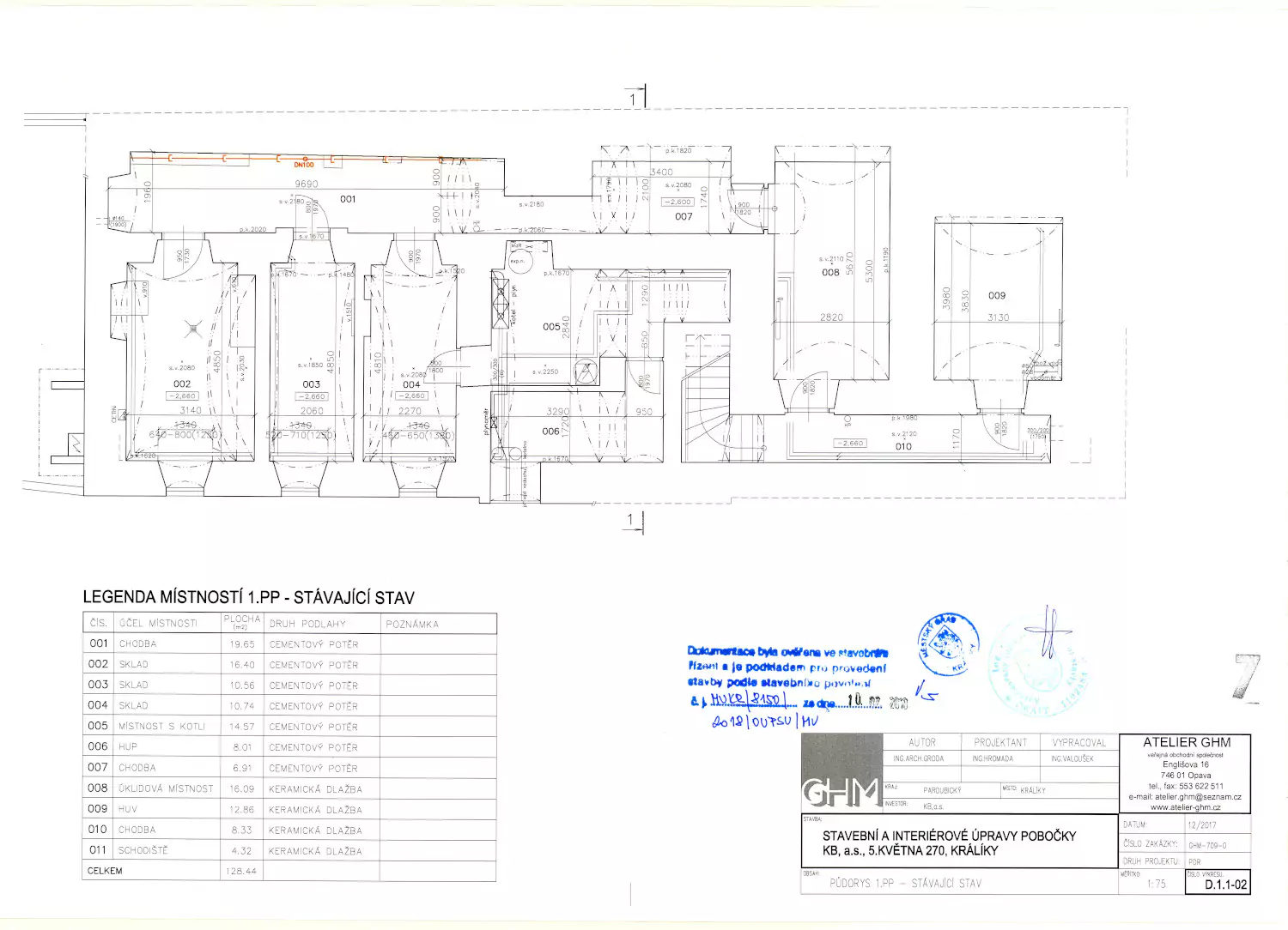
Tento historický dům, který původně sloužil pro účely banky, prošel rozsáhlou a pečlivou rekonstrukcí celého přízemí (1. NP), což zaručuje moderní a reprezentativní prostory připravené k okamžitému využití pro podnikání. Ve 2. nadzemním podlaží se nachází další kancelářské prostory, které nabízejí ideální prostředí pro sídlo vaší firmy. Dominantou interiéru je působivé vnitřní schodiště, které dodává domu punc jedinečnosti a historie. Celý dům je kompletně podsklepen, což poskytuje dostatek úložného prostoru.
Největší přidanou hodnotou této nemovitosti je však její podkroví. K dispozici je platné stavební povolení a kompletní projektová dokumentace na přestavbu na dva samostatné byty. To dává novému majiteli jedinečnou možnost, jak spojit podnikání s bydlením, nebo nemovitost dále rozšířit a generovat dodatečný příjem z pronájmu. Praktičnost podtrhuje vlastní parkovací plocha přímo vedle domu, což je v centru města neocenitelná výhoda pro klienty, zaměstnance i obyvatele.
Stavební dokumentace včetně PENB je kompletní.
Projděte si 1. a 2. nadzemní podlaží, jako byste tam byli a objevte každý kout domu v detailu.
Galerie
dokumentace
Pro více informací a prohlídku nemovitosti mě neváhejte kontaktovat
REALITNÍ MAKLÉŘKA
MICHALA HOLOVSKÁ

REALITNÍ KANCELÁŘ
RE/MAX Elite Reality
17. listopadu 525/9
78701 Šumperk














